Pis
en venda
al Carrer
Joncar, 32
Sant Feliu de Codines
-
m2
75
-
Habitacions
2
-
Banys
1
A-DINS 1964 SERVEIS IMMOBILIARIS us presenta aquests magnífics pisos totalment rehabilitats amb unes vistes espectaculars al centre de Sant Feliu de Codines.
Es tracta d’una finca de 6 habitatges on s’ha rehabili...
A-DINS 1964 SERVEIS IMMOBILIARIS us presenta aquests magnífics pisos totalment rehabilitats amb unes vistes espectaculars al centre de Sant Feliu de Codines.
Es tracta d’una finca de 6 habitatges on s’ha rehabilitat integralment i amb materials d’alta qualitat. Es distribueix en dos pisos en planta baixa, dos pisos en planta primera i dos pisos en planta segona. La finca gaudeix de molta lluminositat.
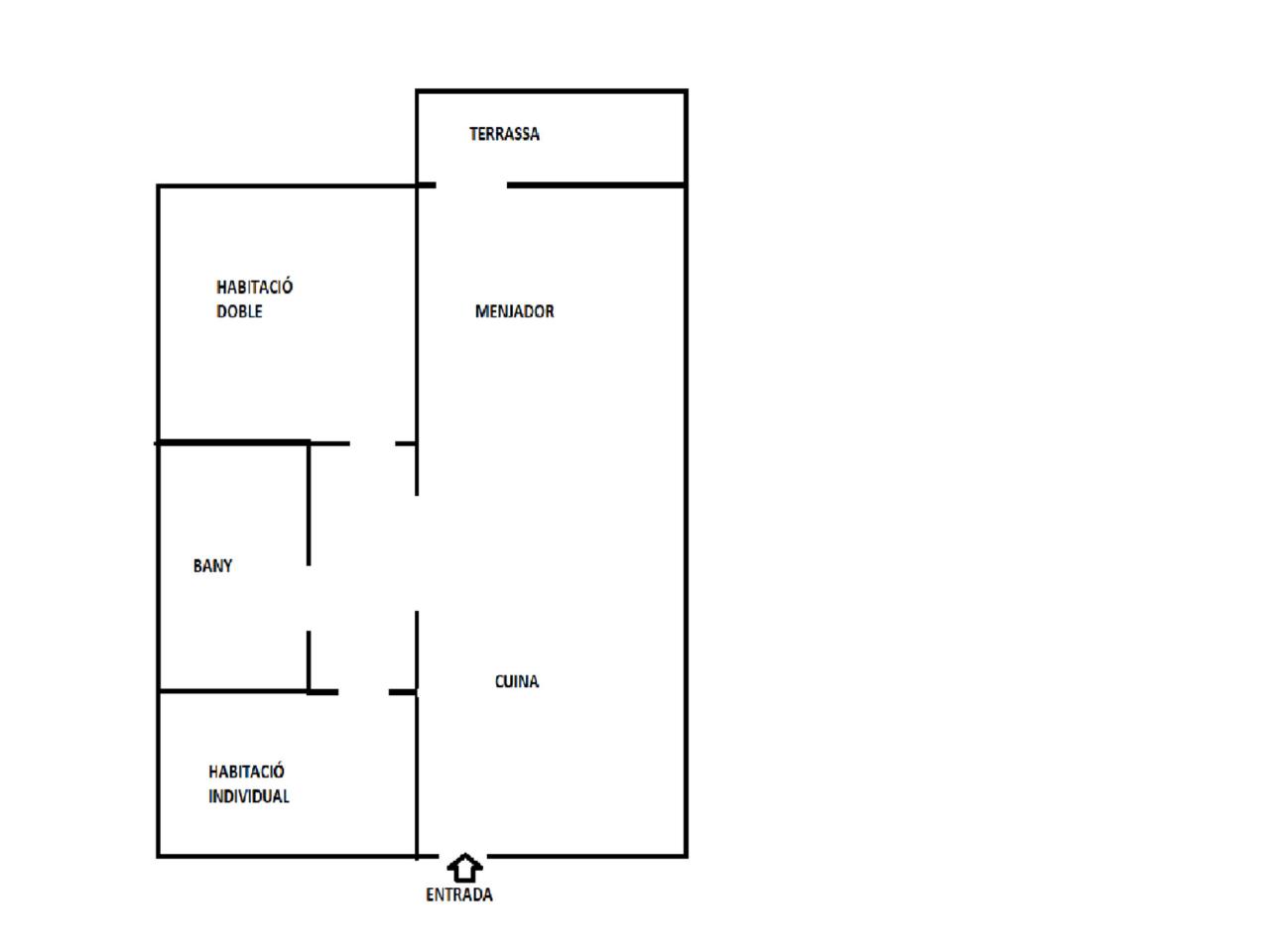
Aquest pis consta de d’una habitació doble amb armari empotrat amb unes vistes brutals, una habitació individual també amb armari empotrat, un bany complet amb plat de dutxa i un menjador cuina de somni... la cuina de disseny totalment equipada juntament amb un menjador amb moltíssima llum i sortida a la terrassa.
Per més informació no dubtis en contactar amb nosaltres al 938653946 o al mail xavier@a-dins.com. Estarem encantats d'ensenyar-te el que podria ser el projecte que estaves buscant
Llegir més
-
Moblada
-
Calefacció
-
Aire condicionat
-
Terrassa
-
Planta
2
-
Superfície útil
70 m2
-
Cert. energètica
Disponible
23 Kg CO2/m2 any
Veure etiqueta energètica